£ 275000
Offers above this

Ownership: Freehold
Condition: Good condition
Purpose: No
Reception : Yes
Home age : 20
Immaculate Detached Home
Lounge with Patio Doors
Dining Room
Kitchen/ Diner
Ensuite
Bathroom & WC
Private Enclosed Garden
Garage and Driveway
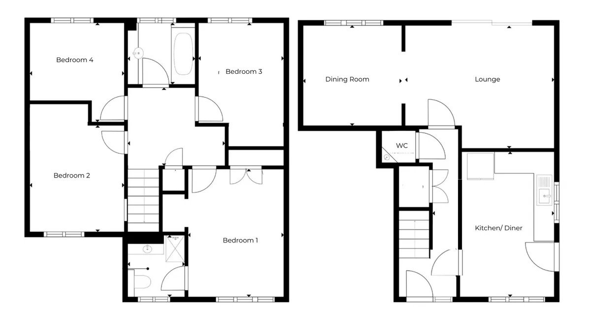
4-Bed Detached House for Sale – 18 The Muirs, Tullibody, Alloa, FK10 2GB Situated within a sought-after modern development in Tullibody, 18 The Muirs is an immaculate and generously proportioned 4-bedroom detached family home offering flexible living accommodation, excellent natural light, and a superb layout suited to modern family life. Well maintained throughout and boasting a spacious rear garden, driveway, and integral garage, this property represents a fantastic opportunity for those seeking a high-quality home in move-in condition. A welcoming hallway gives access to the main ground floor accommodation. To the rear of the house sits a bright and spacious lounge, enhanced by large patio doors that open directly onto the rear garden. This creates an inviting living space with abundant natural light and seamless indoor–outdoor flow. From the lounge, elegant double doors lead into a dedicated dining room — perfect for family meals or more formal entertaining. Positioned at the front of the property is the well-appointed kitchen/diner, offering ample work surfaces, modern units, and space for a table, making it ideal for everyday use. The ground floor also benefits from a conveniently located WC. The first floor provides four excellent bedrooms, all well proportioned and offering flexibility for family living, home working, or guest accommodation. The main bedroom features fitted wardrobes and its own ensuite shower room, providing a welcome level of luxury and privacy. A modern family bathroom completes the upper level. Externally, the rear garden has been designed for low maintenance, with a combination of lawn and decking offering attractive areas for outdoor dining, children’s play, or simply relaxing. To the front of the property, a large monoblock driveway provides off-street parking for multiple cars and leads to the single integral garage, adding valuable storage and practicality.
Monthly repayments
* These results are for a repayment mortgage and are intended as a guide only. Make sure you obtain accurate figures from your broker/lender before committing to any mortgage. The tool, its content and its output are not intended as financial or professional advice nor as an application, offer, solicitation or advertisement as to any loan or loan features, and should not be your primary source of information about mortgage possibilities for you.
Homeilove.co.uk is operated by HOMEILOVE LIMITED with Companies House No: 15647848 registered in England & Wales