£ 2
Guide price

Ownership: Freehold
Condition: Moderate
Purpose: No
Reception : Yes
Home age : Under 5 yrs
Very large family home
Superb finish throughout
A/C
Excellent room proportions
In the heart of Camden
Share of Freehold
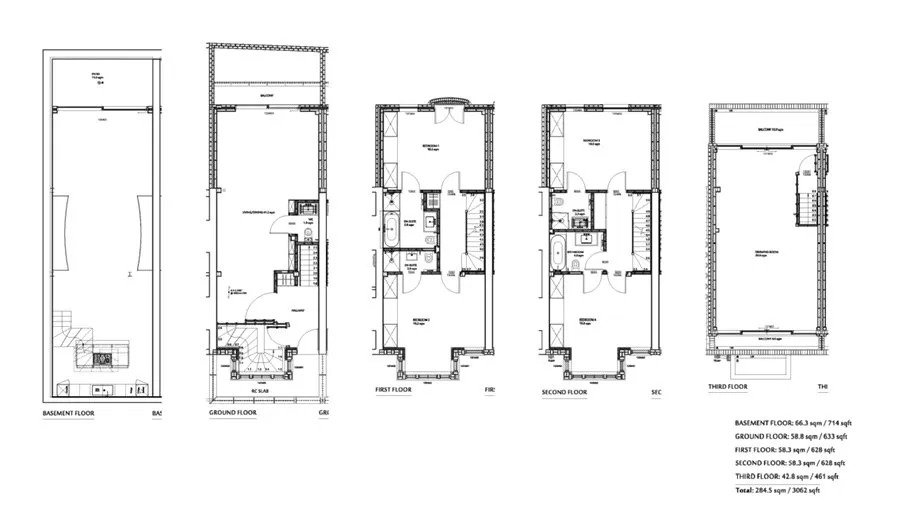
A rare opportunity to acquire a truly remarkable interior designed terraced house that has been finished to an outstanding standard throughout in Camden NW1. The property spans over five levels benefiting from exceptional ceiling volume that is retained on every floor and Comprises of an enormous living room, a very large reception with an open plan kitchen that boasts its state of the art appliances and leads onto a courtyard. The Principle suite, Three further bedrooms all of which have en-suite bathrooms and generous wardrobe space, a third reception/TV room at the top of the house and a guest cloakroom. Belmont Street is a quiet residential street set back from the bustling Camden High Street which is virtually opposite the widely recognised and well known Round House venue. The extremely popular and quirky Camden Stables are again literally just down the road, they along with the parade of shops, restaurants, bars and various amenities are on your doorstep. Camden Tube station is a short walk away which provides a simple commute across the capital.
Monthly repayments
* These results are for a repayment mortgage and are intended as a guide only. Make sure you obtain accurate figures from your broker/lender before committing to any mortgage. The tool, its content and its output are not intended as financial or professional advice nor as an application, offer, solicitation or advertisement as to any loan or loan features, and should not be your primary source of information about mortgage possibilities for you.
Homeilove.co.uk is operated by HOMEILOVE LIMITED with Companies House No: 15647848 registered in England & Wales