£ 1650000
Guide price

Ownership: Freehold
Condition: Good condition
Purpose: Retirement homes
Reception : Yes
Home age : 15
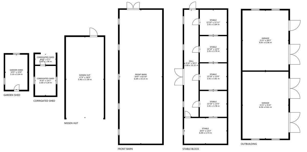
Plot of approx. 7.5 acres
Substantial garaging
Annex potential
Stable block (5 stables) and further large Barn
Menage and fenced paddocks
Outdoor swimming pool area
Approached by a long private driveway (approx. 300 yards) from an electric gated entrance, this detached residence is set on a plot of approx. 7.5 acres offering a 4 double bedroom residence, large 3/4 car garage (potential for conversion to Annex STPP), large games/snooker room and a heated outdoor swimming pool. The closes railway station is Althorne. The imposing detached property sits centrally on the plot – to the ground floor the entrance hall leads into two spacious dual aspect reception rooms both offering double doors out to the covered patio. The kitchen/breakfast room offers dining space, a walk-in pantry and a range cooker – adjacent is a good sized utility room/boot room. The study offers further double doors to outside and there is a shower room/wc (a further wc is accessed from outside). A connecting hallway, from the kitchen area with double doors leading to the outside, gives access to a reception/playroom. Beyond is the 24ft. Dual aspect Games Room ideal for entertaining with windows either side and a set of patio doors, off which is a changing room which has sliding doors leading to the swimming pool, shower and wc. This area lends itself to be used as a separate Annex if required. From the central hallway stairs lead up to the first floor offering a principal bedroom with en-suite shower/wc and built-in wardrobes. There are three further double bedrooms, a store room and a family bathroom with corner bath and separate shower.
Monthly repayments
* These results are for a repayment mortgage and are intended as a guide only. Make sure you obtain accurate figures from your broker/lender before committing to any mortgage. The tool, its content and its output are not intended as financial or professional advice nor as an application, offer, solicitation or advertisement as to any loan or loan features, and should not be your primary source of information about mortgage possibilities for you.
Homeilove.co.uk is operated by HOMEILOVE LIMITED with Companies House No: 15647848 registered in England & Wales