£ 1600000
Guide price

Ownership: Freehold
Condition: Good condition
Purpose: No
Reception : Yes
Home age : Under 5 yrs
Traditional Victorian former Rectory
High ceilings
sash windows
fireplaces
Plot of approx. 7 acres
Red brick Coach House
Just 3 miles Southminster Station
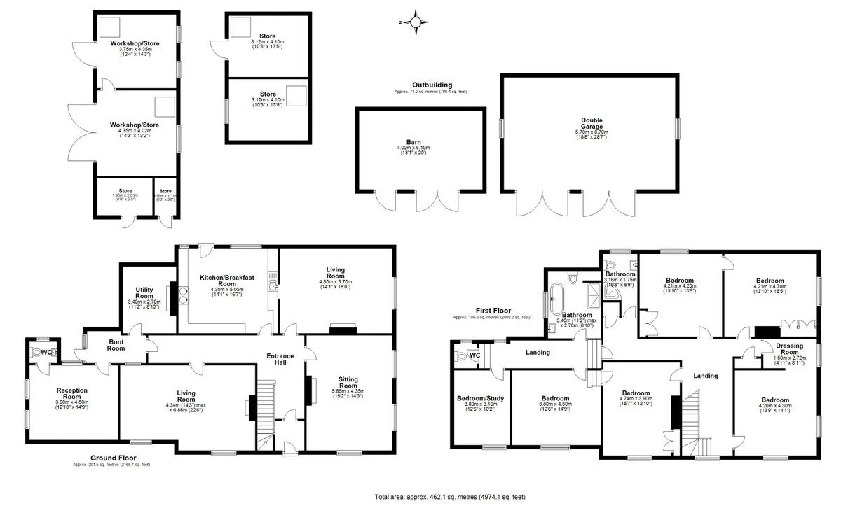
This classical former Rectory, dating back to the Victorian era, offers 5,000 sq. Ft., of accommodation of 6 bedrooms, four reception rooms and traditional kitchen/breakfast room. The stylish interior has been extremely well maintained throughout and features high ceilings, large sash windows flooding the rooms with natural light, bespoke kitchen and exquisite bathrooms. Set on a 7 acre plot with gardens, fenced paddocks and views over open countryside. Approached by a carriage driveway from the road, the Old Vicarage has traditional elevations, noted in photographs c.1904. A welcoming central entrance hall gives access to the four reception rooms, which feature high ceilings, large sash windows, wood floors and feature fireplaces (some with woodburning stoves), one reception offering access to a ground floor cloakroom. The kitchen/breakfast room offers a bespoke range of traditional wood units with range cooker, ample space for breakfast dining and a door to outside. There is also a good sized utility room and a boot room leading to outside. From the hallway a balustrade staircase leads up to the first floor where the six bedrooms are equally bright and airy, having been tastefully decorated and offer views over the gardens and open countryside beyond. There is a family bathroom, additional shower room, dressing room to the main bedroom, a connecting door between two of the bedrooms to the rear and a separate wc. There is a detached double garage and, approached from the driveway is a red brick double height Coach House which offers car/workshop space with double doors, workshop and storage space. A gardeners delight the beautifully landscaped gardens feature an abundance of flowers and shrub with a Wisteria complimenting the house. There is a large sun terrace and a vegetable garden and outbuilding/storage ideal for garden machinery. Surrounding the property are well tended lawns, mature trees and hedgerows as well as an abundance of fruit trees. There are furthe
Monthly repayments
* These results are for a repayment mortgage and are intended as a guide only. Make sure you obtain accurate figures from your broker/lender before committing to any mortgage. The tool, its content and its output are not intended as financial or professional advice nor as an application, offer, solicitation or advertisement as to any loan or loan features, and should not be your primary source of information about mortgage possibilities for you.
Homeilove.co.uk is operated by HOMEILOVE LIMITED with Companies House No: 15647848 registered in England & Wales