£ 695000
Guide price

Ownership: Leasehold
Condition: Good condition
Purpose: No
Reception : Yes
Home age : 15
Outdoor Patio
Close to public transport
Modern Kitchen and Bathroom
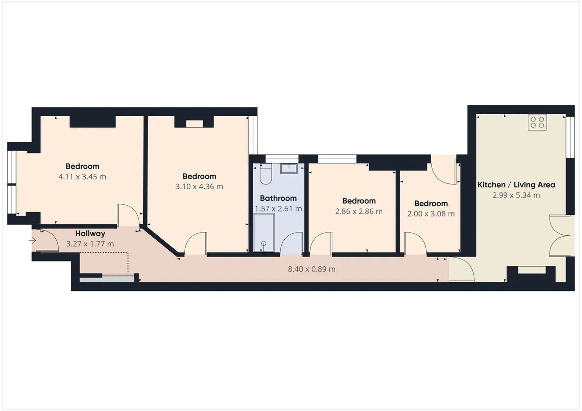
Discover this extraordinary property in this rare and beautifully proportioned four-bedroom apartment, situated on the ground floor of the highly desirable Lanark Mansions on Pennard Road. The property has been thoughtfully laid out to provide an abundance of space, ideal for a growing family or those seeking flexible living arrangements. The heart of the home is a spacious and welcoming living area, perfect for both relaxing and entertaining. Adjacent to this, the well-appointed kitchen is a functional space for cooking lovers. Accommodation includes four generous bedrooms, offering substantial space for family and guests, with the flexibility to use one as a home office or study. A large, family bathroom serves all four bedrooms. One of the standout features of this apartment is the private outdoor patio, a peaceful and secluded space that provides a wonderful extension of the living area. Located within the sought-after Lanark Mansions, this home offers the peace and quiet of a residential street while being just a stone's throw from the vibrant hub of Shepherd's Bush. Enjoy easy access to world-class shopping at Westfield London, a diverse range of restaurants, and superb transport links including Goldhawk Road, Shepherd's Bush Market (Hammersmith & City and Circle lines), and Shepherd's Bush (Central line and London Overground) stations, all within a short walk. This is a truly exceptional opportunity to acquire a spacious and well-located ground-floor apartment with a private patio in one of West London’s most popular mansion blocks. Early viewing is highly recommended.
Monthly repayments
* These results are for a repayment mortgage and are intended as a guide only. Make sure you obtain accurate figures from your broker/lender before committing to any mortgage. The tool, its content and its output are not intended as financial or professional advice nor as an application, offer, solicitation or advertisement as to any loan or loan features, and should not be your primary source of information about mortgage possibilities for you.
Homeilove.co.uk is operated by HOMEILOVE LIMITED with Companies House No: 15647848 registered in England & Wales